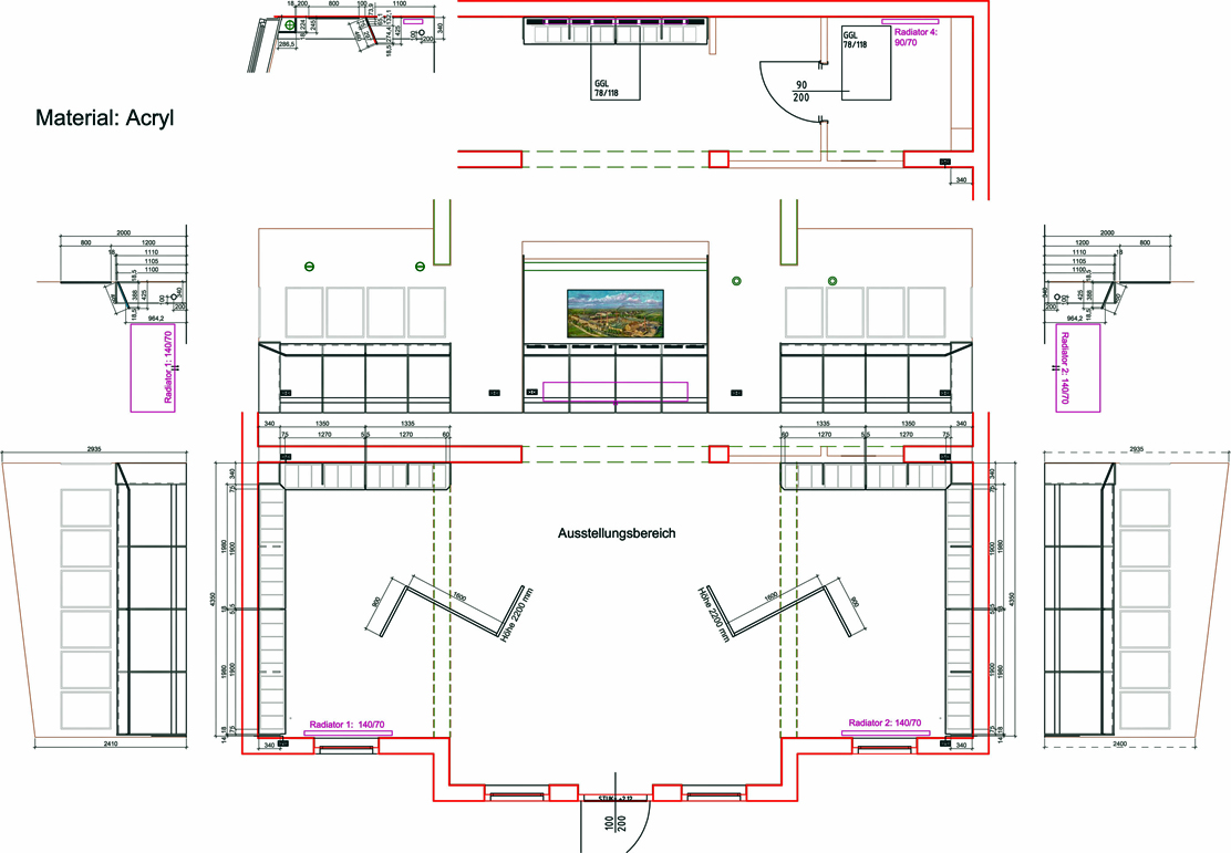
Einrichtungsplan von Erwin Milalkovits und Burkhard Gager für den Ausstellungsbereich des Museums Marienthal.

Erwin Milalkovits und Burkhard Gager: Einrichtungsplan Museum Marienthal, Ausstellungsbereich. Zeichner: Erwin Milalkovits. Gramatneusiedl, am 19. März 2011, 27,20 X 39,23 cm.

Quelle: Kulturverein Museum Marienthal-Gramatneusiedl.

© Copyright