|
Home
Verein
Museum
Chronik
Bilder
Pläne
Marienthal
Gramatneusiedl
Sponsoren
Pressespiegel
Gästebuch
Shop
Anreise
Kontakt
Mitgliedschaft
Impressum
Museum Marienthal
Hauptstraße 64
2440 Gramatneusiedl
Österreich
Öffnungszeiten
täglich 8 bis 18 Uhr
Eintritt frei |
|
Pläne zum Consum und zum Museum Marienthal
Zur
Vergrößerung klicken Sie auf das Bild!
|
|
Der
Komplex
Arbeiterwohnhaus Altgebäude,
erbaut 1833 als zweite
Textilfabrik Marienthal (dunkel schraffierte Teile des
hufeisenförmigen Baus) mit den Erweiterungen anlässlich des
Umbaus zum Wohnhaus 1845 (rosa Teile). Der 1864 errichtete
Consum
im
Hof, straßenseitig gelegen, ist nur angedeutet.
Ausschnitt aus Alfred Offner & Josef Nosek: Kataster Dorf
Gramatneusiedl in N[ieder]-Österreich. V[iertel] u[nter dem]
W[iener] W[ald]. Steueramt Ebreichsdorf. 1869 (mit Ergänzungen
1876), Blatt 14 und 18.
Quelle: Archiv für die
Geschichte der Soziologie in Österreich, Nachlass Georg Grausam,
Signatur 48/01.03.
© Copyright |
|
|
Der Komplex
Arbeiterwohnhaus Altgebäude
(99 bis 102) mit dem im Hof straßenseitig gelegenen
Consum
(105 bis 107)
des »Consum-Vereins
Marienthal«
und den angebauten
Holzlagen (104), welche in den heutigen Bau des
Museums
Marienthal integriert sind. Links des Altgebäudes befindet
sich die Waschküche mit dem
Montessoriheim (150).
Ausschnitt aus
D[avid] V[alentin] Junk: K[aiserlich] k[önigliche]
Baumwoll-Spinnerei, Weberei, Bleiche, Appretur, Färberei und
Druckerei Marienthal. 1:500. Wien: Technisches Bureau D.V. Junk
1896.
Quelle: Archiv für die
Geschichte der Soziologie in Österreich,
Virtuelles Archiv Marienthal.
© Copyright |
|
|
Grundriss des
1864 errichteten
Consums
des »Consum-Vereins
Marienthal«
mit den angebauten
Holzlagen und dem Brunnen vor dem
Eingang. Es befanden sich im
Mitteltrakt (grün) ebenerdig das Verkaufslokal und im Halbstock
ein Magazin, im jeweils eingeschossigen Nord- und Südtrakt je
ein Magazin.
Bearbeiteter Ausschnitt aus
D[avid] V[alentin] Junk: K[aiserlich] k[önigliche]
Baumwoll-Spinnerei, Weberei, Bleiche, Appretur, Färberei und
Druckerei Marienthal. 1:500. Wien: Technisches Bureau D.V. Junk
1896.
Quelle: Archiv für die
Geschichte der Soziologie in Österreich,
Virtuelles Archiv Marienthal.
© Copyright |
|
|
Das
Museum
Marienthal:
Grundriss.
Polierplan Bestandsobjekt Konsum.
Christine Göschelbauer,
Architekturbüro »Architekten Diplomingenieure
Taschner-Kinger & Partner ZT GmbH«, für die
»Gemeinnützige Wohnungs- und
Siedlungsgenossenschaft Neunkirchen reg. Gen.m.b.H.« (SGN).
Nordansicht. Plan Nummer 936/56
vom 16. Januar 2008, 30,06 X 65,72 cm.
Quelle: Kulturverein Museum
Marienthal-Gramatneusiedl.
© Copyright |
|
|
Das
Museum
Marienthal:
Schnitt.
Polierplan Bestandsobjekt Konsum.
Christine Göschelbauer,
Architekturbüro »Architekten Diplomingenieure
Taschner-Kinger & Partner ZT GmbH«, für die
»Gemeinnützige Wohnungs- und
Siedlungsgenossenschaft Neunkirchen reg. Gen.m.b.H.« (SGN).
Nordansicht. Plan Nummer 936/57
vom 16. Januar 2008, 30,06 X 54,01 cm.
Quelle: Kulturverein Museum
Marienthal-Gramatneusiedl.
© Copyright |
|
|
Das
Museum
Marienthal:
Nordansicht.
Polierplan Bestandsobjekt Konsum.
Christine Göschelbauer,
Architekturbüro »Architekten Diplomingenieure
Taschner-Kinger & Partner ZT GmbH«, für die
»Gemeinnützige Wohnungs- und
Siedlungsgenossenschaft Neunkirchen reg. Gen.m.b.H.« (SGN).
Nordansicht. Plan Nummer 936/58
vom 16. Januar 2008, 30,06 X 52,60 cm.
Quelle: Kulturverein Museum
Marienthal-Gramatneusiedl.
© Copyright |
|
|
Das
Museum
Marienthal:
Südansicht.
Polierplan Bestandsobjekt Konsum.
Christine Göschelbauer,
Architekturbüro »Architekten Diplomingenieure
Taschner-Kinger & Partner ZT GmbH«, für die
»Gemeinnützige Wohnungs- und
Siedlungsgenossenschaft Neunkirchen reg. Gen.m.b.H.« (SGN).
Nordansicht. Plan Nummer 936/59
vom 16. Januar 2008, 30,06 X 52,60 cm.
Quelle: Kulturverein Museum
Marienthal-Gramatneusiedl.
© Copyright |
|
|
Das
Museum
Marienthal:
Westansicht.
Polierplan Bestandsobjekt Konsum.
Christine Göschelbauer,
Architekturbüro »Architekten Diplomingenieure
Taschner-Kinger & Partner ZT GmbH«, für die
»Gemeinnützige Wohnungs- und
Siedlungsgenossenschaft Neunkirchen reg. Gen.m.b.H.« (SGN).
Nordansicht. Plan Nummer 936/60
vom 16. Januar 2008, 30,06 X 52,60 cm.
Quelle: Kulturverein Museum
Marienthal-Gramatneusiedl.
© Copyright |
|
|
Lageplan des
Museums
Marienthal (Naturzustand).
Lageplan (Naturzustand), Marktgemeinde Gramatneusiedl, am
8. Februar 2011, 28,30 X 19,37 cm.
Quelle: Kulturverein Museum
Marienthal-Gramatneusiedl.
© Copyright |
|
|
Lageplan des
Museums
Marienthal.
Lageplan (Naturzustand), Marktgemeinde Gramatneusiedl, am
8. Februar 2011, 28,33 X 19,37 cm.
Quelle: Kulturverein Museum
Marienthal-Gramatneusiedl.
© Copyright |
|
|
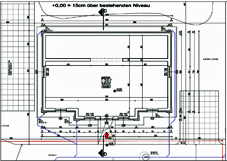
Einrichtungsplan von Erwin
Milalkovits und Burkhard Gager für den Ausstellungsbereich des
Museums
Marienthal.
Erwin Milalkovits und Burkhard Gager: Einrichtungsplan Museum
Marienthal, Ausstellungsbereich. Zeichner: Erwin Milalkovits.
Gramatneusiedl, am 19. März 2011, 27,20 X 39,23 cm.
Quelle: Kulturverein Museum
Marienthal-Gramatneusiedl.
© Copyright |
|
|
Einrichtungsplan von Erwin
Milalkovits und Burkhard Gager für den Medien-,
Garderoben- und Sanitärbereich des
Museums
Marienthal.
Erwin Milalkovits und Burkhard Gager: Einrichtungsplan Museum
Marienthal, Medien-, Garderoben- und Sanitärbereich. Zeichner:
Erwin Milalkovits. Gramatneusiedl, am
19. März 2011, 19,37 X 39,76 cm.
Quelle: Kulturverein Museum
Marienthal-Gramatneusiedl.
© Copyright |
Anfragen
zu den Bildern richten Sie, bitte, an das
Archiv für die
Geschichte der Soziologie in Österreich beziehungsweise an den »Kulturverein
Museum Marienthal-Gramatneusiedl«.
Copyright © 2013 Reinhard Müller, Graz
Stand: Februar 2013

|